Propuesta Concurso Nacional de Anteproyectos PARA LA SEDE CAPBA IV COLEGIO DE ARQUITECTOS DELEGACIÓN LOBOS
TEXTO
La arquitectura se manifiesta en nuestro entorno, no solo para quienes la practicamos. La naturaleza social de la disciplina convierte a la comunidad en su principal objetivo. Para el desarrollo de la Delegacion Lobos del Colegio de Arquitectos D5, valoramos las posibilidades de integración con la comunidad.
La arquitectura se manifiesta en nuestro entorno, no solo para quienes la practicamos. La naturaleza social de la disciplina convierte a la comunidad en su principal objetivo. Para el desarrollo de la Delegacion Lobos del Colegio de Arquitectos D5, valoramos las posibilidades de integración con la comunidad.
El acercamiento al sitio deja en claro la identidad arquitectónica presente en la construcción pre-existente. Dado que la exigencia de flexibilidad de usos es importante en el programa de necesidades, se decidió prescindir de la construcción existente, dejando únicamente la fachada de la vivienda original.
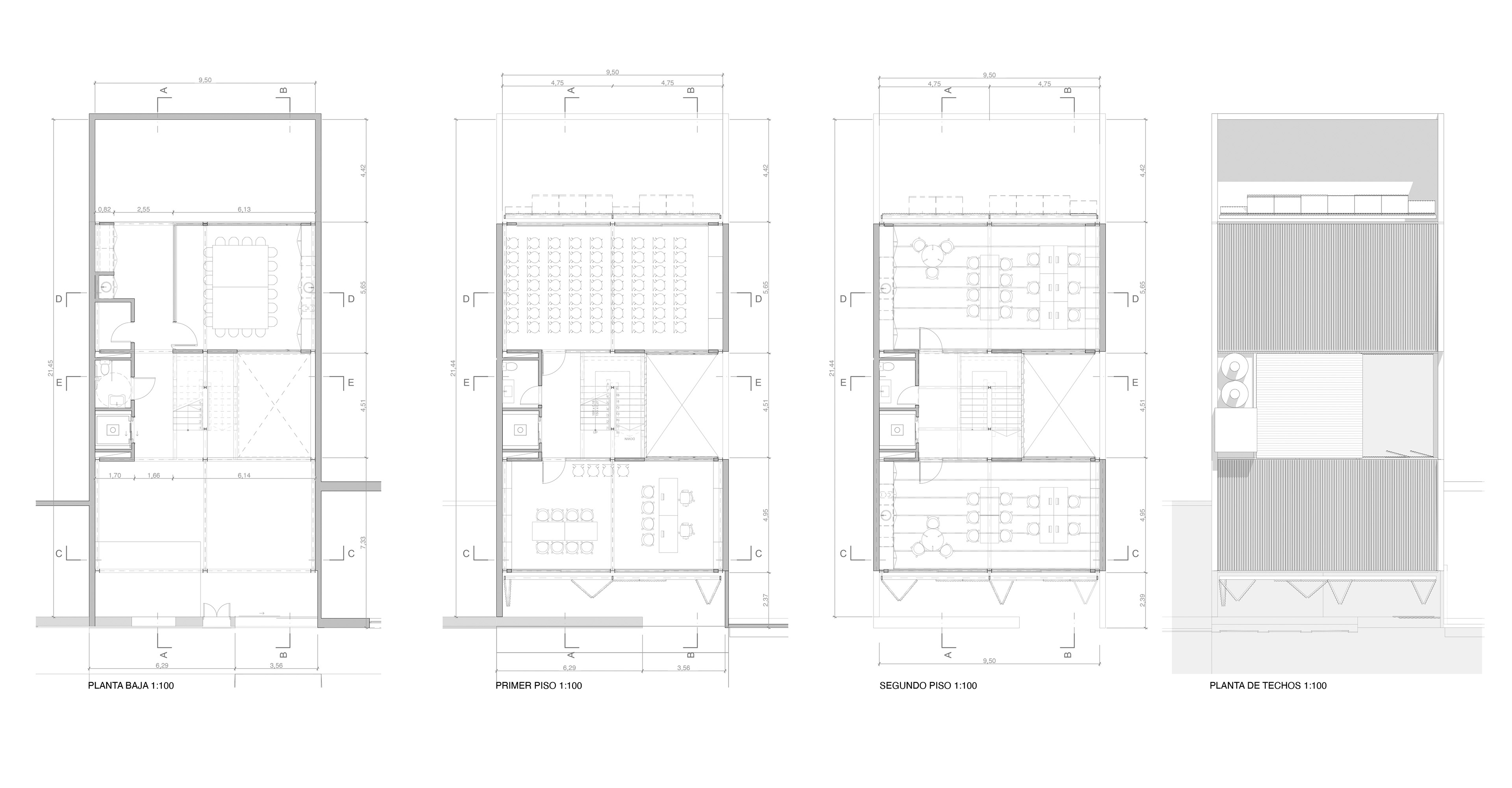
El volumen del edificio se retira de la linea municipal, generando un fuelle entre la construcción nueva y la fachada de la antigua casa. El proyecto se desarrolla en dos cuerpos, vinculados por un eje vertical que concentra circulación y sanitarios, formando a la vez un patio interior abierto hacia el Este.
En planta baja se accede un gran semicubierto que hace de recepción y espacio de exposiciones temporales. Antecediendo al patio trasero, se encuentra al espacio comedor o sala de reuniones social, con acceso directo al patio y a la parrilla protegida en un semicubierto. El primer nivel contempla hacia el frente el area administrativa del colegio, y hacia el fondo el SUM / Auditorio. Los espacios de guardado se apoyan sobre los muros medianeros, dejando el resto de la planta libre para un uso flexible. En el segundo y ultimo nivel, encontramos dos espacios de oficinas temporales que, al igual que en el nivel inferior, permiten un aprovechamiento flexible para funcionar como espacios de formación, de trabajo o para exposiciones.
Materializado con estructura independiente metálica y cerramientos de construcción en seco, los volúmenes permiten construirse en etapas separadas o simultáneamente. Un sistema de cerramientos verticales plegables de chapa micro-perforada recubre la fachada Sur. Hacia el Norte, el sistema de cerramiento es horizontal y móvil en las aberturas. El eje de circulación es un espacio protegido por un cerramiento corrugado translucido fijo, que filtra la iluminación natural y protege de los elementos, sin necesidad de acondicionar el espacio.
EQUIPO
Diego Genaro Rodriguez, Diego Andres Siddi
Diego Genaro Rodriguez, Diego Andres Siddi